ID CP2904683

Bd.Metalurgiei, spatiu comercial 125 mp, zona Parc Tudor Arghezi

ID CP2904683

425,000 € + 21% TVA

Spațiu comercial de vânzare
Berceni, Bucuresti
124.84 mp
2019

Spatiu comercial de vanzare, 125 mp – Bulevardul Metalurgiei stradal, Sectorul 4, Bucuresti

Va propunem spre vanzare un spatiu comercial premium, situat la parterul unui imobil nou cu 8 etaje, parte din proiectul The Grand Kristal, amplasat stradal la Bulevardul Metalurgiei, chiar peste drum de Parcul Tudor Arghezi, in cadrul Metalurgiei Park – Faza 1, una dintre cele mai dezvoltate zone din Sectorul 4, Bucuresti.

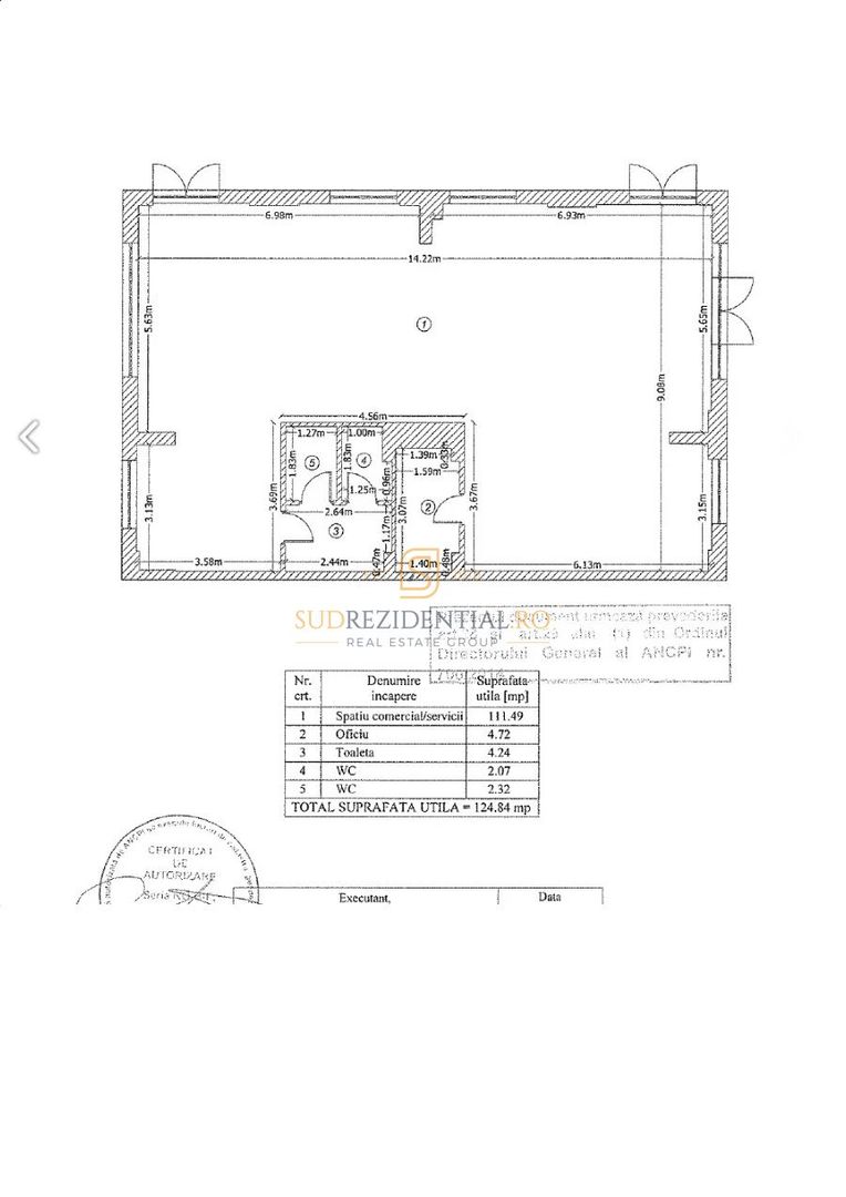
Suprafata utila este de 124.84 mp, cu compartimentare functionala: zona open space pentru activitate comerciala, oficiu, toaleta si doua grupuri sanitare.

Amplasat pe coltul cladirii, cu vizibilitate pe 3 laturi, vitrina extinsa si geamuri din podea pana in tavan, spatiul ofera expunere maxima si luminozitate naturala – ideale pentru orice tip de business.

Dispune de acces dublu – atat dinspre Bulevardul Metalurgiei, cat si dinspre Drumul Jilavei, facilitand atat fluxul de clienti, cat si aprovizionarea.

5 locuri de parcare sunt disponibile, distribuite pe doua dintre laturile vitrate ale spatiului, asigurand confort si acces usor.

Dotari si finisaje de top:

- Tamplarie PVC cu geam tripan, integral pe inaltime

- Centrala termica proprie 24 kW + calorifere din otel

- Sistem de alarma, supraveghere video si cablare voce-date

- Aer conditionat performant

- Podele ceramice de calitate superioara

- Pereti finisati cu vopsea decorativa San Marco

- Tavane casetate, grup sanitar modern complet utilat

- Inaltime interioara: 3.5 m

- Izolatie fonica catre etajul superior

Spatiul comercial este amplasat in Sectorul 4, in cadrul Metalurgiei Park – Faza I, vizavi de Parcul Tudor Arghezi, un punct de atractie ce genereaza trafic pietonal constant, ideal pentru cafenele, restaurante, servicii, retail, clinici sau showroom-uri.

Pozitionat direct la Bd. Metalurgiei, una dintre cele mai tranzitate artere din sudul Capitalei, spatiul ofera vizibilitate excelenta si acces facil din Drumul Jilavei. In apropiere se afla statii STB cu legaturi directe catre metrou, iar Berceni Arena Sport Center – patinoar olimpic – completeaza atractivitatea zonei.

Numarul redus de spatii comerciale disponibile in ansamblu face ca aceasta proprietate sa fie o oportunitate rara de investitie, cu beneficii pe termen lung.

Vecinatati comerciale: Metro, Auchan, Jumbo, Lidl, Kaufland, Carrefour, Profi – retaileri care consolideaza vadul comercial si atrag zilnic atat rezidenti, cat si vizitatori.

Pret: 425.000 Euro + TVA

Citește mai mult

  • Tip imobil
    Bloc de apart.
  • Trafic pietonal
    Intens
  • Etaj
    Parter
  • Număr camere
    1
  • Număr băi
    2
  • Număr terase
    1
  • Număr bucătării
    1
  • Suprafață utilă
    124.84 mp
  • Vitrină (m)
    12.0 m
  • Înălțime interioară
    3.5
  • Disponibilitate
    Imediat
  • Compartimentare spațiu
    Flexibil
  • Număr locuri parcare
    5
  • An construcție
    2019
  • Număr etaje clădire
    8

Facilități

Acces pentru persoane cu dizabilități
Acces secundar marfă
Afișare logo pe clădire
Apă
Canalizare
Centrală termică
Contorizare separată
Curent
Gaz
Grupuri sanitare amenajate și utilate
Parcare deschisă
Posibilitate terasă
Sistem de alarmă
Sistem de ventilație
Vestiar
Alexandru Costache - Sudrezidential Real Estate
Alexandru Costache
Director Vanzari

0729572570


Solicită chiar acum o vizionare
Telefon
Sună acum Solicită vizionare
Necesare:

Site-ul nu poate funcționa corect fără aceste cookie-uri. Vezi cookie-urile

Statistică:

Strângem statistici anonime despre voi, vizitatorii unici, pentru a vă îmbunătăți experiența dumneavoastră. Vezi cookie-urile

Marketing:

Pentru a ne promova mai eficient serviciile noastre, folosim cookies pentru a vă identifica și a vă oferi proprietăți și servicii personalizate. Vezi cookie-urile

Acest site folosește cookies, află detalii. Alege ce tipuri de cookies dorești să permitem: