ID CP2831064

Vanzare spatiu comercial, pozitionare strategica in Popesti-Leordeni

ID CP2831064

125,000 € + 21% TVA

Spațiu comercial de vânzare
Central, Popesti-Leordeni
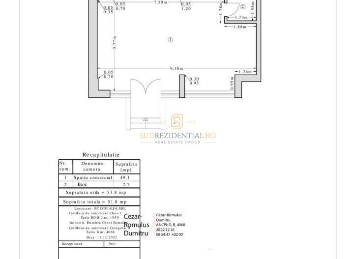
51.8 mp
2022

Spatiu Comercial excelent– Investitie cu amortizare rapida in centrul Orasului Popesti-Leordeni, Ilfov

Va oferim spre vanzare un spatiu comercial de exceptie, situat in zona centrala a orasului Popesti-Leordeni, intr-o arie in plina expansiune, dar cu un numar redus de spatii comerciale disponibile. Amplasarea sa strategica, intr-o zona cu cerere crescuta pentru servicii si produse comerciale, reprezinta unavantaj competitiv majorpentru orice tip de afacere.

Detalii spatiu:

- Suprafata utila:51.8 mp open-space, ideala pentru activitati comerciale diverse

- Inaltime spatiu:3.5 metri, ofera flexibilitate pentru amenajare interioara

- Vitrina de 9.38 metri liniari:vizibilitate crescuta, perfecta pentru branding

- Finisaje premium:dotari moderne, inclusiv centrala proprie de 24 kW, aer conditionat si contorizare individuala

Avantajele Investitiei:

- Amplasare in zona centrala cu vad comercial ridicat:Lipsa spatiilor comerciale din aceasta zona intens populata ofera un flux constant de clienti si un avantaj semnificativ pentru dezvoltarea afacerii.

- Venituri imediate, fara investitii suplimentare: spatiul este deja inchiriat, asigura venituri imediate si amortizarea rapida a investitiei.

- Posibilitati de branding:Vitrina generoasa garanteaza expunere maxima, atrage atentia trecatorilor si consolideaza imaginea brandului.

Infrastructura si conectivitate: Zona beneficiaza de o infrastructura completa, cu acces facil la mijloace de transport public (metrou sau STB: 449, 440, 479, Maxi Taxi) si in apropiere de mari centre comerciale (Mega Image, Lidl, Kaufland, Profi, Sun Plaza Mall). Strazile sunt asfaltate, iluminate nocturn si prevazute cu limitatoare de viteza pentru siguranta pietonilor.

Acest spatiu comercial este ideal pentru investitori datorita amplasarii in zona centrala a orasului Popesti-Leordeni, Ilfov, la numai 200 m fata de Soseaua Oltenitei. Proprietatea este o oportunitate unica, genereaza venituri rapide deoarece este deja inchiriata si beneficiaza de avantajul lipsei de competitie (in zona in care este localizata lipsesc spatiile comerciale).

In pretul afisat nu este inclusa cota de TVA.

Citește mai mult

  • Tip imobil
    Bloc de apart.
  • Trafic pietonal
    Moderat
  • Etaj
    Parter
  • Suprafață utilă
    51.8 mp
  • Înălțime interioară
    3.5
  • Disponibilitate
    Imediat
  • Compartimentare spațiu
    Open space
  • Număr locuri parcare
    2
  • An construcție
    2022

Facilități

Acces pentru persoane cu dizabilități
Afișare logo pe clădire
Apă
Canalizare
Centrală termică
Contorizare separată
Curent
Gaz
Grupuri sanitare amenajate și utilate
Sistem de alarmă
Alexandru Costache - Sudrezidential Real Estate
Alexandru Costache
Director Vanzari

0729572570


Solicită chiar acum o vizionare
Telefon
Sună acum Solicită vizionare
Necesare:

Site-ul nu poate funcționa corect fără aceste cookie-uri. Vezi cookie-urile

Statistică:

Strângem statistici anonime despre voi, vizitatorii unici, pentru a vă îmbunătăți experiența dumneavoastră. Vezi cookie-urile

Marketing:

Pentru a ne promova mai eficient serviciile noastre, folosim cookies pentru a vă identifica și a vă oferi proprietăți și servicii personalizate. Vezi cookie-urile

Acest site folosește cookies, află detalii. Alege ce tipuri de cookies dorești să permitem: