ID CP2929865

Vila individuala de vanzare, P+E+M, zona Dristor

ID CP2929865

689,000 €

Casă / Vilă cu 7 camere de vânzare
Dristor, Bucuresti
247 mp

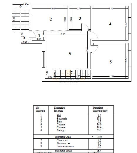
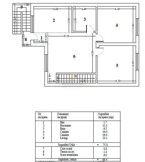
Vila Individuală P+E+M, formată din două corpuri de clădire cu suprafata utilata totala de 247 mp situată într-o zonă liniștită de case, la doar 5 minute de mers pe jos de stația de metrou Dristor (aprox. 400 m)

Corp 1 (construit în 2011, structură beton și cărămidă) – suprafață utilă totală 160 mp:

- Et 1 : 2 camere, living cu bucătărie open space, baie cu jacuzzi

- Mansardă: 70 mp, dressing de 12 mp și spatiu depozitare (toate instalatiile trase pentru inca o baie)

Corp 2 (Parter) – suprafață utilă 87 mp:

- 3 camere, hol, 2 bai, bucătărie + Atelier

Suprafata totatala teren : 329 mp, cu deschidere de 9,18 ml.

Proprietatea este excelent poziționată, aproape de parc IOR ( 13 minute de mers pe jos - 1 km), ParkLake Mall si unitati de invatamant.

Curtea oferă un spațiu verde generos, cu magnolie matură, pini, castani, foișor și zonă de grătar – ideală pentru relaxare.

Imobilul dispune de toate utilitățile și se pretează atât pentru locuință, cât și pentru birouri, sediu firmă, grădiniță/afterschool sau alte activități.

Citește mai mult

  • Număr camere
    7
  • Dormitoare
    5
  • Număr bucătării
    2
  • Număr băi
    3
  • Număr terase
    1
  • Număr locuri parcare
    2
  • Disponibilitate
    Imediat
  • Tip casă
    Individual
  • Stare interior
    Ultrafinisat
  • Anul finisării
    2011
  • Suprafață utilă
    247 mp
  • Suprafață construită
    296 mp
  • Suprafață teren
    329 mp
  • Acoperiș
    Tablă
  • Stadiu construcție
    Finalizată
  • Tip construcție
    Beton
  • Număr etaje clădire
    1
  • Are mansardă
    Da

Facilități

Aer condiționat
Apă
Apometre
Bucătărie deschisă
Cabină de duș
Cadă
Calorifere
Canalizare
CATV
Centrală proprie
Contor electric
Contor gaz
Curent
Curte
Faianță
Gaz
Grădină proprie
Gresie
Hotă
Iluminat stradal
Internet
Izolație exterioară
Jacuzzi
Mașină de spălat rufe
Mijloace de transport în comun
Mobilat parțial
Parcare acoperită
Parchet
Străzi asfaltate
Telefon
TV
Vopsea lavabilă
Sebastian Iliescu - Sudrezidential Real Estate
Sebastian Iliescu
Director Vanzari

0729572570


Solicită chiar acum o vizionare
Telefon
Sună acum Solicită vizionare
Necesare:

Site-ul nu poate funcționa corect fără aceste cookie-uri. Vezi cookie-urile

Statistică:

Strângem statistici anonime despre voi, vizitatorii unici, pentru a vă îmbunătăți experiența dumneavoastră. Vezi cookie-urile

Marketing:

Pentru a ne promova mai eficient serviciile noastre, folosim cookies pentru a vă identifica și a vă oferi proprietăți și servicii personalizate. Vezi cookie-urile

Acest site folosește cookies, află detalii. Alege ce tipuri de cookies dorești să permitem: