ID CP2840209

Vila indiviuala, 5 camere, curte libera 320 mp - Comuna Berceni, IF

ID CP2840209

230,000 €

Casă / Vilă cu 5 camere de vânzare
Berceni
204 mp
2009

Va propunem spre vanzare o vila individuala, construita in anul 2009, cu o arhitectura eleganta si functionala, situata pe un teren generos de 460 mp, cu o amprenta la sol de 143 mp si curte libera de 317 mp, ideala pentru relaxare si timp petrecut in aer liber.

Imobilul este pozitionat eficient in partea din spate a terenului, asigurand o zona verde extinsa in fata casei, ideala pentru amenajare terasa, spatiu de joaca sau gradina.

Proprietatea beneficiaza de o deschidere ampla la strada de 22.59 ml, iar fata de vecini are delimitari clare: 21.50 ml si 20.10 ml lateral, 19.74 ml pe spate.

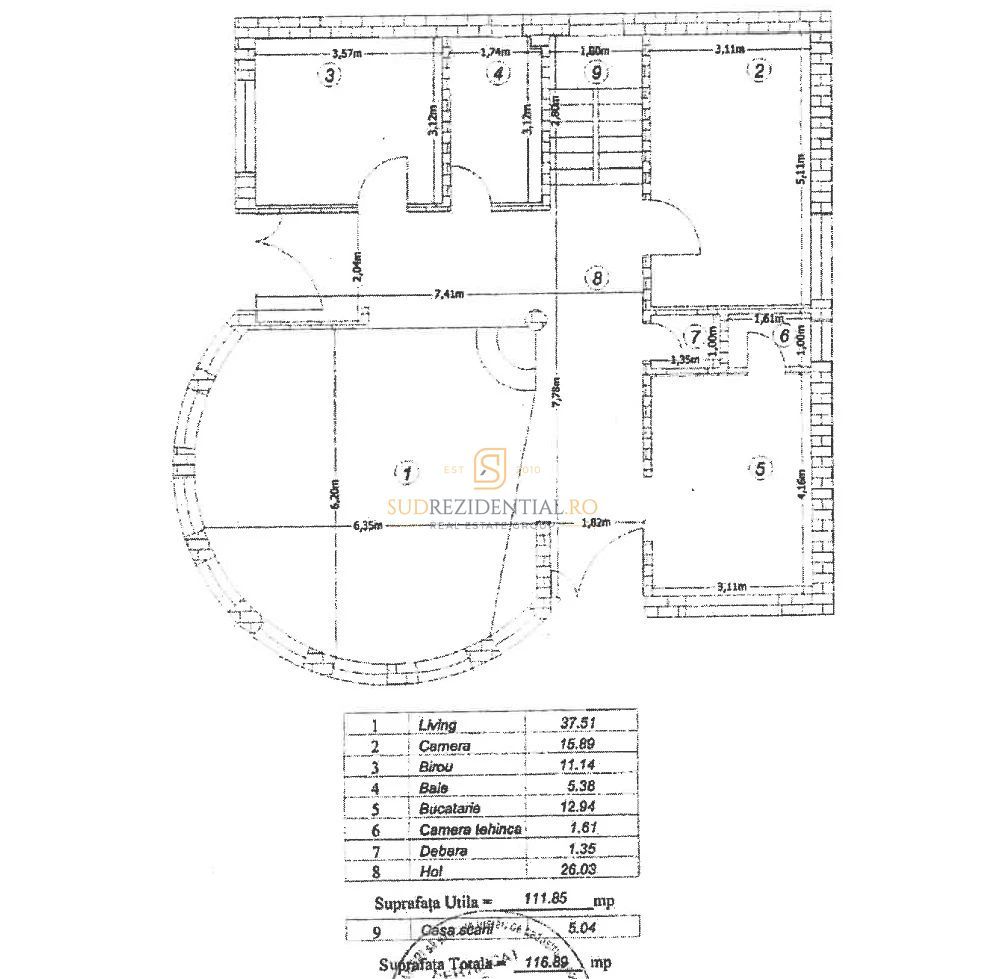
Constructia este pe regim de inaltime Parter + Mansarda, solida, cu structura din beton armat si caramida si compartimentare excelenta:

Parter – Suprafata utila: 116.89 mp

- Living spectaculos – 37.51 mp, dormitor – 15.89 mp, birou – 11.14 mp, bucatarie inchisa – 12.94 mp, baie – 5.38 mp, camera tehnica – 1.61 mp, debara – 1.35 mp, hol central – 26.03 mp

Etaj – Suprafata utila: 87.12 mp

- Dormitor 1 – 21.69 mp, dormitor 2 – 18.54 mp, baie principala – 9.39 mp, baie secundara – 4.76 mp, dressing – 9.27 mp, hol – 16.75 mp, 2 balcoane – 0.84 mp fiecare

Finisaje interioare: gresie, faianta, parchet, usi celulare, tamplarie PVC cu geam termopan, centrala termica. Casa se vinde finisata, fiind gata pentru utilizare.

Utilitati complete: alimentare cu apa, energie electrica si gaze naturale.

Imobilul dispune suplimentar de un beci util pentru depozitare si de put forat, care asigura o sursa alternativa de apa – un avantaj important pentru irigarea gradinii, reducerea costurilor de intretinere si independenta fata de reteaua publica.

Curtea este complet amenajata cu gazon natural si include doua locuri de parcare, cu zona de acces pietonal delimitata. Imobilul este imprejmuit cu gard din beton si gard metalic, asigurand intimitate, siguranta si un aspect unitar al proprietatii.

Vila este situata intr-una dintre cele mai cautate zone rezidentiale din Comuna Berceni, Ilfov, intr-un cartier linistit si modern, cu vecini de calitate si acces pietonal rapid catre Bulevardul 1 Mai – principala artera de circulatie a comunei Beceni.

Accesul din Bucuresti catre Comuna Berceni se realizeaza prin Soseaua Berceni, o artera de circulatie importanta care a fost modernizata si extinsa in ultimii ani, inclusiv prin realizarea Pasajului peste DNCB – un proiect de infrastructura menit sa imbunatateasca conectivitatea intre Sudul Capitalei si zona metropolitana Ilfov.

Locuinta se afla la:

- doar cateva minute minute cu masina fata de A0 si Centura Bucuresti (DNCB)

- 4 km fata de statia de metrou Tudor Arghezi

- In apropiere se afla Park & Ride Tudor Arghezi cu 350 locuri de parcare, solutie ideala pentru cei care lucreaza in Bucuresti: masina ramane in siguranta, iar metroul reduce costurile si timpul de deplasare.

Citește mai mult

  • Număr camere
    5
  • Dormitoare
    4
  • Număr bucătării
    1
  • Număr băi
    3
  • Număr balcoane
    2
  • Număr locuri parcare
    2
  • Disponibilitate
    Imediat
  • Tip casă
    Individual
  • Stare interior
    Finisat modern
  • Anul finisării
    2009
  • Suprafață utilă
    204 mp
  • Suprafață construită
    235 mp
  • Suprafață construită la sol (Amprentă)
    143.0 mp
  • Suprafață teren
    460 mp
  • Suprafață curte liberă
    317 mp
  • Deschidere
    22.59 m
  • Acoperiș
    Tablă
  • Stadiu construcție
    Finalizată
  • An construcție
    2009
  • Construcție nouă
    Da
  • Tip construcție
    Beton
  • Are mansardă
    Da

Facilități

Acoperiș
Apă
Apometre
Bucătărie deschisă
Calorifere
Centrală proprie
Contor căldură
Contor electric
Contor gaz
Curent
Curte
Debara
Faianță
Ferestre PVC
Fosă septică
Gaz
Geamuri termopan
Grădină proprie
Gresie
Iluminat stradal
Internet
Mijloace de transport în comun
Nemobilat
Parcare deschisă
Parchet
Pivniță
Străzi asfaltate
Telefon
Ușă intrare metal
Uși interior lemn
Vopsea lavabilă
Georgian Dascalu - Sudrezidential Real Estate
Georgian Dascalu
Director Vanzari

0729572570


Solicită chiar acum o vizionare
Telefon
Sună acum Solicită vizionare
Necesare:

Site-ul nu poate funcționa corect fără aceste cookie-uri. Vezi cookie-urile

Statistică:

Strângem statistici anonime despre voi, vizitatorii unici, pentru a vă îmbunătăți experiența dumneavoastră. Vezi cookie-urile

Marketing:

Pentru a ne promova mai eficient serviciile noastre, folosim cookies pentru a vă identifica și a vă oferi proprietăți și servicii personalizate. Vezi cookie-urile

Acest site folosește cookies, află detalii. Alege ce tipuri de cookies dorești să permitem: